Skip To Content

1814 Colorado Boulevard

Bullhead City, AZ 86442
  • $105,000
  • STATUS: Closed
  • ON SITE: 210 Days
  • MLS #: 032710
Sold - 02/12/2026
$105,000
SOLD - 02/12/2026
  • 2
    BEDS
  • 0.09
    ACRES
  • 1
    BATHS
  • 0
    1/2 BATHS
  • 728
    SQFT
  • $144
    $/SQFT
Neighborhood:
Type:
Manufactured Home
Built:
2000
County:

School Ratings & Info

Description

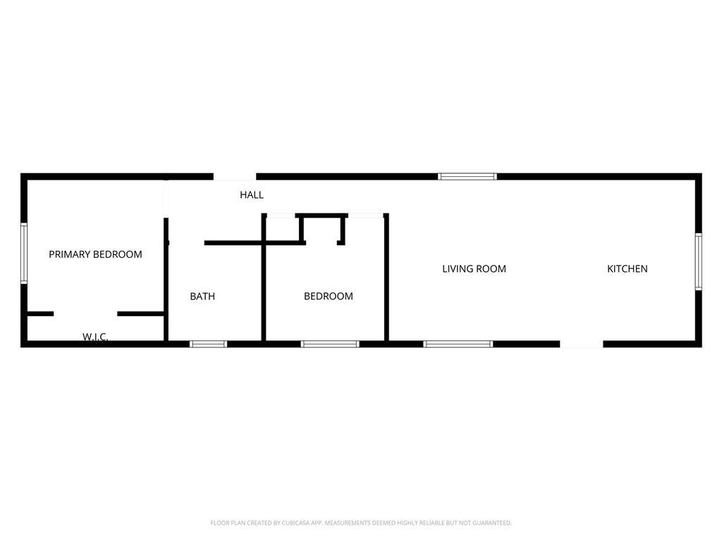
MOVE-IN READY! OWNED LAND and NO HOA! Welcome to this well-maintained 2000 manufactured home offering comfort, convenience, and accessibility all in one package. This cozy 2-bedroom, 1-bathroom residence features handicap-accessible amenities including interior grab rails and exterior ramps, making it ideal for all mobility needs. Step inside to find newer carpeting, a brand new mini split air conditioner for efficient climate control, and a convenient inside laundry area. The fresh rock landscape, mature trees, and covered patio create a peaceful outdoor space perfect for relaxing or entertaining. A shed with electricity provides extra storage or a workshop option, and the central location close to the river keeps you near local recreation, shopping, and dining. Don't miss this opportunity to own a thoughtfully updated, move-in-ready home in a great location!

Monthly Payment Calculator

Listing information © 2026 Western Arizona Realtor Data Exchange. IDX data provided exclusively for consumer's personal, non-consumer use and may not be used for any purpose other than to identify prospective properties consumers may be interested in purchasing. Data is deemed reliable, but not guaranteed accurate by the Western Arizona Realtor Data Exchange. Data last updated: 2026-04-21T11:43:58.04.
www.homesbullhead.com/homes/168158238
Print Image

1814 Colorado Boulevard Bullhead City, AZ 86442

  • Price: $105,000
  • Status: Closed
  • On Site: 210 Days
  • Updated: 65 min ago
  • MLS #: 032710
2
Beds
1
Baths
0
½ Baths
0.09
Acres
728
SQFT
$144
$/SQFT
2000
Built
Neighborhood:
River Bend
County:
Mohave
Property Description
MOVE-IN READY! OWNED LAND and NO HOA! Welcome to this well-maintained 2000 manufactured home offering comfort, convenience, and accessibility all in one package. This cozy 2-bedroom, 1-bathroom residence features handicap-accessible amenities including interior grab rails and exterior ramps, making it ideal for all mobility needs. Step inside to find newer carpeting, a brand new mini split air conditioner for efficient climate control, and a convenient inside laundry area. The fresh rock landscape, mature trees, and covered patio create a peaceful outdoor space perfect for relaxing or entertaining. A shed with electricity provides extra storage or a workshop option, and the central location close to the river keeps you near local recreation, shopping, and dining. Don't miss this opportunity to own a thoughtfully updated, move-in-ready home in a great location!
Exterior Features

Body Type Single Wide Entry Location Breakfast Bar Ceiling Fan(s) Counters- Laminate Din Fencing Back Yard Chain Link Lot Features Public Road Street Level Lot Size Dimensions 45 x 90 x 42 x 91 Mobile Length 52 Mobile Width 14 Pool Features None Pool Private YN No Roof Shingle

Interior Features

Appliances Dryer Gas Oven Gas Range Refrigerator Water Heater Washer Cooling Ductless Evaporative Cooling Evaporative / Swamp Cooling YN Yes Fireplace YN No Flooring Carpet Laminate Furnished Unfurnished Heating Ductless Central Gas Wall Furnace Heating YN Yes Interior Features Breakfast Bar Ceiling Fan(s) Dining Area Great Room Laminate Counters Laminate Countertop Primary Suite Open Floorplan Pantry Vaulted Ceiling(s) Window Treatments Rooms Total 1 Window Features Window Coverings

Property Features

Accessibility Features Low Threshold Shower Association YN No Building Area Total 728 Buyer Financing Cash Electric 110 Volts Land Lease YN No Laundry Features Electric Dryer Hookup Gas Dryer Hookup Listing Terms Cash Conventional1031 Exchange FHA VA Loan New Construction YN No Property Sub Type Manufactured Home Property Sub Type Additional Manufactured Home Senior Community YN No Sewer Public Sewer Tax Annual Amount 364.5 Tax Year 2024 Utilities Electricity Available Natural Gas Available Water Source Public Zoning Description R1 MH Res: Single Fam Mobile Home

Listing provided by LH Keller Williams Arizona Living Realty: 928-453-6111.
Listing information © 2026 Western Arizona Realtor Data Exchange. IDX data provided exclusively for consumer's personal, non-consumer use and may not be used for any purpose other than to identify prospective properties consumers may be interested in purchasing. Data is deemed reliable, but not guaranteed accurate by the Western Arizona Realtor Data Exchange. Data last updated: 2026-04-21T11:43:58.04.
 
https://bt-photos.global.ssl.fastly.net/wardex/orig_boomver_1_032710-2.jpg https://bt-photos.global.ssl.fastly.net/wardex/orig_boomver_1_032710-2.jpg https://bt-photos.global.ssl.fastly.net/wardex/orig_boomver_1_032710-2.jpg
Logo
Irminger Monroe Group | Keller Williams Arizona Living Realty
3790 Hwy 95
Bullhead City AZ, 86442