Skip To Content

1951 Granada Drive

Bullhead City, AZ 86442
  • $159,900
  • STATUS: Pending
  • ON SITE: 12 Days
  • MLS #: 035905
Pending
UPDATED: 90 min ago
$159,900
  • 3
    BEDS
  • 0.11
    ACRES
  • 2
    BATHS
  • 0
    1/2 BATHS
  • 1,152
    SQFT
  • $139
    $/SQFT
Neighborhood:
Type:
Manufactured Home
Built:
1991
County:

School Ratings & Info

Description

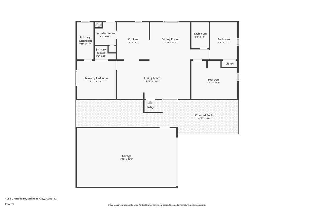
Looking for that perfect Bullhead City home with 2 car BOAT DEEP GARAGE & minutes to the COLORADO RIVER? Look no further than 1951 Granada Drive & this ready to move into manufactured home that is 1152 sf & features 3 bedrooms & 2 bathrooms. This home sits on a spacious .11 acre fully fenced lot so you have plenty of room to roam. Step through the front door & be greeted by a semi open concept living space, vaulted ceilings for added comfort, & plenty of windows to let in all that natural light. The kitchen area is just off the living room & offers breakfast bar seating, gas range, & plenty of cabinets & counter space. The home also features both a casual dining area, as well as a formal dining area or place for that home office. The primary suite is situated on its own side of this home for added privacy while featuring a walk in style closet, & tub/shower combo. The guest bedrooms & bathroom are located on the opposite side of the home so your family & guests who visit feel right at home. An in-house laundry room rounds out the great features on the interior. Step outside & enjoy the gorgeous year-round Arizona weather from the comforts of your spacious yard. The home offers both covered & uncovered patio spaces, & the detached 29' boat deep garage has you covered for all of your storage needs for your water & desert toys, & even that family RV or travel trailer. This home is situated in the heart of Bullhead City & minutes to the Laughlin casinos, the Colorado River, restaurants, & shopping. The perfect full-time residence or part time vacation home. Check it out today as you won't be disappointed.

Monthly Payment Calculator

Listing information © 2026 Western Arizona Realtor Data Exchange. IDX data provided exclusively for consumer's personal, non-consumer use and may not be used for any purpose other than to identify prospective properties consumers may be interested in purchasing. Data is deemed reliable, but not guaranteed accurate by the Western Arizona Realtor Data Exchange. Data last updated: 2026-02-11T23:43:52.583.
www.homesbullhead.com/homes/172588180
Print Image

1951 Granada Drive Bullhead City, AZ 86442

  • Price: $159,900
  • Status: Pending
  • On Site: 12 Days
  • Updated: 90 min ago
  • MLS #: 035905
3
Beds
2
Baths
0
½ Baths
0.11
Acres
1,152
SQFT
$139
$/SQFT
1991
Built
Neighborhood:
Riviera Mobile Gardens
County:
Mohave
Property Description
Looking for that perfect Bullhead City home with 2 car BOAT DEEP GARAGE & minutes to the COLORADO RIVER? Look no further than 1951 Granada Drive & this ready to move into manufactured home that is 1152 sf & features 3 bedrooms & 2 bathrooms. This home sits on a spacious .11 acre fully fenced lot so you have plenty of room to roam. Step through the front door & be greeted by a semi open concept living space, vaulted ceilings for added comfort, & plenty of windows to let in all that natural light. The kitchen area is just off the living room & offers breakfast bar seating, gas range, & plenty of cabinets & counter space. The home also features both a casual dining area, as well as a formal dining area or place for that home office. The primary suite is situated on its own side of this home for added privacy while featuring a walk in style closet, & tub/shower combo. The guest bedrooms & bathroom are located on the opposite side of the home so your family & guests who visit feel right at home. An in-house laundry room rounds out the great features on the interior. Step outside & enjoy the gorgeous year-round Arizona weather from the comforts of your spacious yard. The home offers both covered & uncovered patio spaces, & the detached 29' boat deep garage has you covered for all of your storage needs for your water & desert toys, & even that family RV or travel trailer. This home is situated in the heart of Bullhead City & minutes to the Laughlin casinos, the Colorado River, restaurants, & shopping. The perfect full-time residence or part time vacation home. Check it out today as you won't be disappointed.
Exterior Features

Body Type Double Wide Carport Spaces 1 Carport YN Yes Entry Location Breakfast Bar Ceiling Fan(s) Counters- Laminate Din Exterior Features Landscaping Fencing Back Yard Chain Link Front Yard Garage YN Yes Lot Features Public Road Street Level Lot Size Dimensions 60x80x62x80 Parking Features Carport Detached RV Access / Parking Garage Door Opener Patio And Porch Features Covered Patio Pool Features None Pool Private YN No Road Surface Type Paved Roof Shingle View Mountain(s) View YN Yes

Interior Features

Appliances Gas Oven Gas Range Refrigerator Water Heater Cooling Central Air Electric Cooling YN Yes Fireplace YN No Flooring Wood Hard Surface Flooring or Low Pile Carpet Heating Central Gas Heating YN Yes Interior Features Breakfast Bar Ceiling Fan(s) Dining Area Separate / Formal Dining Room Laminate Counters Laminate Countertop Main Level Primary Primary Suite Open Floorplan Vaulted Ceiling(s) Walk- In Closet(s) Rooms Total 0

Property Features

Association YN No Electric 110 Volts220 Volts Green Water Conservation Water- Smart Landscaping Land Lease YN No Laundry Features Electric Dryer Hookup Inside Listing Terms Cash Conventional1031 Exchange FHA VA Loan New Construction YN No Pets Allowed Yes Property Sub Type Manufactured Home Property Sub Type Additional Manufactured Home Security Features Prewired Senior Community YN No Sewer Public Sewer Tax Annual Amount 384.22 Tax Year 2025 Utilities Natural Gas Available Water Source Public Zoning Description R1 MH Res: Single Fam Mobile Home

Listing provided by Black Mountain Valley Realty: 928-577-2349.
Listing information © 2026 Western Arizona Realtor Data Exchange. IDX data provided exclusively for consumer's personal, non-consumer use and may not be used for any purpose other than to identify prospective properties consumers may be interested in purchasing. Data is deemed reliable, but not guaranteed accurate by the Western Arizona Realtor Data Exchange. Data last updated: 2026-02-11T23:43:52.583.
 
https://bt-photos.global.ssl.fastly.net/wardex/orig_boomver_1_035905-2.jpg https://bt-photos.global.ssl.fastly.net/wardex/orig_boomver_1_035905-2.jpg https://bt-photos.global.ssl.fastly.net/wardex/orig_boomver_1_035905-2.jpg
Logo
Irminger Monroe Group | Keller Williams Arizona Living Realty
3790 Hwy 95
Bullhead City AZ, 86442